






ברוכין בתי אמנה שלב ב
אודות הפרויקט
לפרויקט שלל יתרונות: סטנדרט גבוה, מפרט עשיר, שכונה חדשה, מרווחת ומתכוננת בקפידה.
הישוב ממוקם בסמוך לכביש 5, עם נגישות גבוהה לכל חלקי הארץ ולגוש דן. הזדמנות מיוחדת המאפשרת להמשיך לעבוד בגוש דן, ובמקביל ליהנות משקט, נוף מדהים וחיי קהילה עשירים.
זה הזמן להצטרף לישוב המבוקש ברוכין, המשלב חיי תורה, קהילה, תרבות והתיישבות.
מפרט מכר
חוץ ודלתות
- בניין מדורג מחופה אבן
- דלת כניסה פלרז דגם נטע
- פעמון כניסה
- דלתות פנים, למינטו
מטבח
- שיש קיסר 2 כיורים
- ארונות מטבח איכותיים עליונים -ותחתונים מגוף סנדוויץ'
- שיש קיסר 2 כיורים
- הכנה למדיח כלים
חשמל
- חשמל דירתי 3*25
- שעון שבת
- הכנה למזגן מיני מרכזי
אלומיניום וחלונות
- חלונות אלומיניום עם זכוכית בידודית
- תריס חשמלי בחדר דיור + שעון שבת
אמבטיות ושירותים
- ברזי פרח
- אסלות תלויות ומיכלים סמויים
- דוד מים בקיבולת 150 ליטר
- אמבטיה אקרילית
- ארון אמבטיה עם כיור מובנה
- חיפוי קירות וריצוף קרמיקה יוקרתית במבחר גוונים
ריצוף
- גרניט פורצלן מסדרה איכותית במבחר גוונים 60*60 בכל דירה (למעט חדרים רטובים)
מי אחראי לכל הטוב הזה?

בנייני בר אמנה
תנועת ההתיישבות אמנה - על ידי חברת הבת שלה "בנייני בר אמנה" יוזמת ומובילה פרויקטים של בנייה למגורים ביישוביה וברחבי יישובי יש"ע.
לבנייני בר אמנה עשרות פרויקטים ברחבי יו"ש, הגליל והנגב, ומוניטין בנייה של אלפי יחידות דיור.
דגמים בשיווק בפרויקט

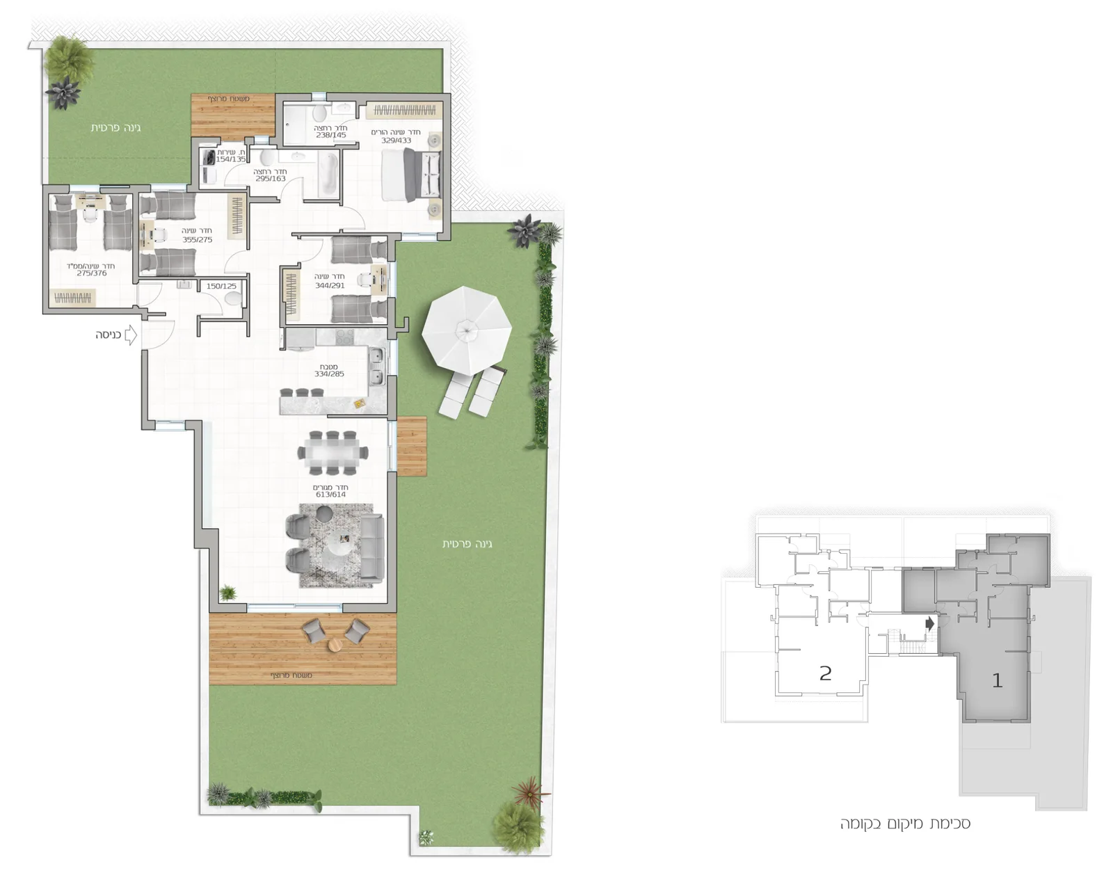
דגם עשה-אל - קרקע
5 חדרים על 148 מ"ר + גינה פרטית

דגם עשה-אל - קרקע
5 חדרים על 139 מ"ר + גינה פרטית

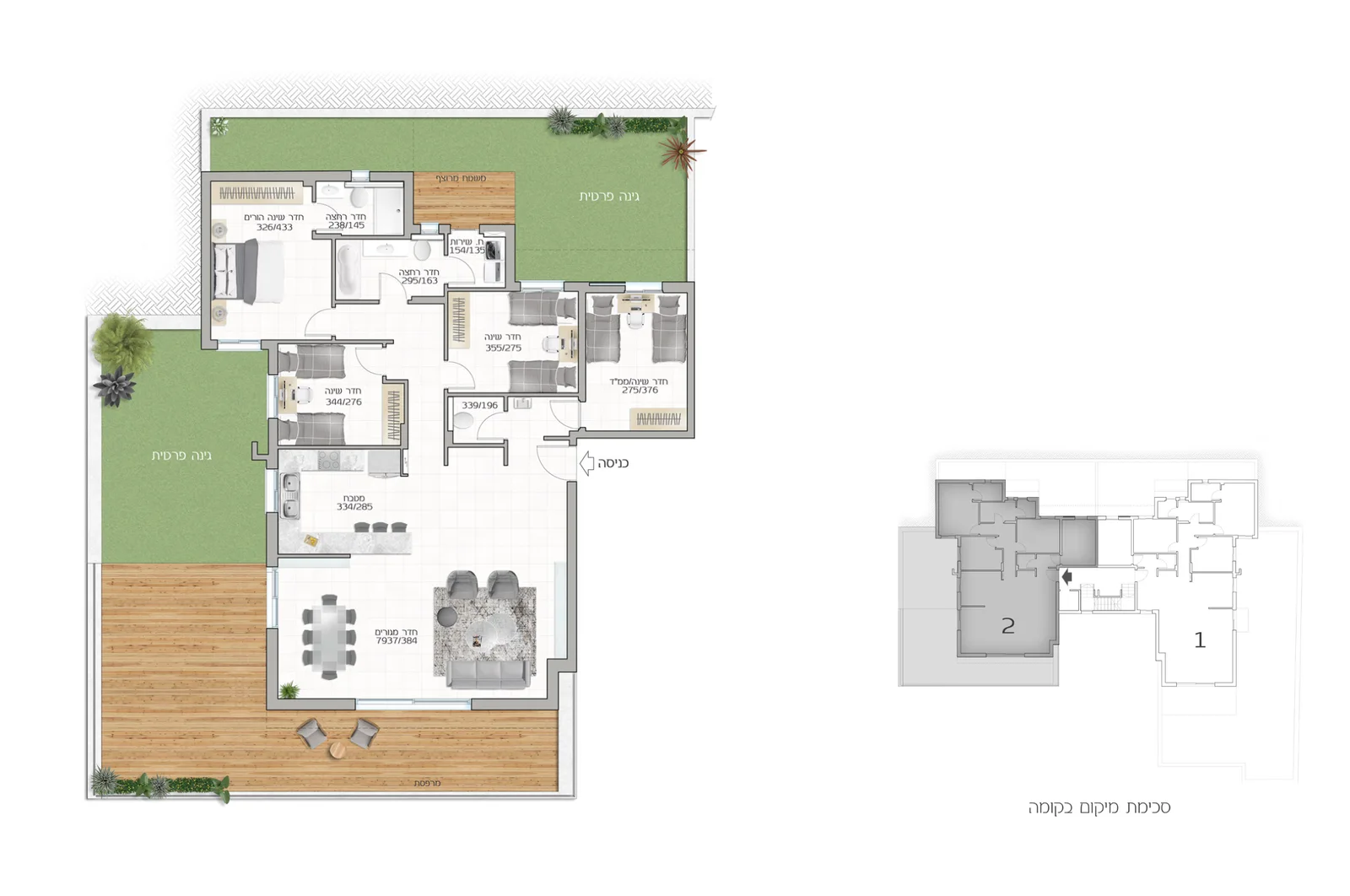
דגם עשה-אל - קומה 2
5 חדרים על 132 מ"ר + גינה פרטית + מרפסת

דגם עשה-אל - קומה 2
4.5 חדרים על 123 מ"ר + גינה פרטית + מרפסת

דגם עשה-אל - קומה 3
3 חדרים על 109 מ"ר + גינה פרטית + מרפסת + גג עליון מוצמד 82 מ"ר

דגם עשה-אל - קומה 3
3 חדרים על 103 מ"ר + גינה פרטית + מרפסת + גג עליון מוצמד 85 מ"ר

דגם שילה - קומה 1
דופלקס 6 חדרים על 166 מ"ר + חצר + מרפסות (קומה ראשונה)

דגם שילה - קומה 1
קומה שניה של הדירה

דגם שילה - קומה 1
דופלקס 5.5 חדרים על 136 מ"ר + חצר + מרפסות (קומה ראשונה)

דגם שילה - קומה 1
קומה שניה של הדירה
מיקום הפרויקט
מעוניינים בפרויקט בברוכין?
השאירו פרטים ונציגי הפרויקט יחזרו אליכם עם כל המידע הרלוונטי